- Woonoppervlakte
- Circa 115 m²
- Perceeloppervlakte
- Circa 143 m²
- Bouwjaar
- Gebouwd in 1982
- Aantal kamers
- 5 kamers (4 slaapkamers)
Instapklare tussenwoning met oprit, 4 slaapkamers en diepe tuin aan het water
Deze keurig onderhouden tussenwoning kun je zo betrekken! De woning ligt in de kindvriendelijke wijk De Horden – een levendige buurt met een vriendelijke sfeer, ideaal voor gezinnen. De wijk is ruim en gevarieerd opgezet en biedt op loopafstand alle voorzieningen: een winkelcentrum, scholen, speeltuinen en sportfaciliteiten.
De Horden is de grootste wijk van Wijk bij Duurstede en typisch voor de jaren ’80 gebouwd, met woonstraten zonder stoepen en veel groen. De historische binnenstad met o.a. Kasteel Duurstede, de Grote Kerk en de molen ligt dichtbij. Via de A12 en A27, of met het openbaar vervoer, zijn Utrecht, Zeist en Driebergen binnen een half uur bereikbaar.
KENMERKEN:
Woonoppervlakte: 114,50 m²
Overige inpandige ruimte: 6,3 m²
Inhoud: 426,83 m³
Perceel: 143 m²
Bouwjaar: 1982
Energielabel: C (komt een nieuwe voor die naar verwachting gunstiger zal zijn)
INDELING:
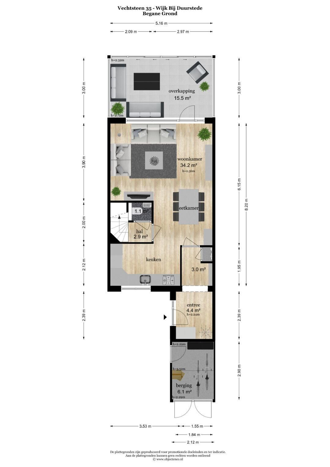
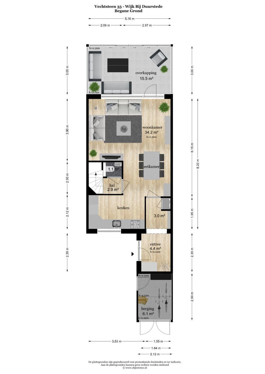
Begane grond
Entree met hal en meterkast. Vanuit hier stap je de royale woonkamer van ca. 34,2 m² binnen. In het hart van de kamer ligt het eetgedeelte met ruimte voor een grote eettafel. Dankzij de open keuken blijf je in contact met je gasten. De beneden verdieping is voorzien van vloerverwarming en er is een kruipruimte-/vloerisolatie gedaan.
De keuken is gesitueerd in een L-opstelling en in 2021 gerenoveerd. Voorzien van vernieuwde fronten, nieuwe afzuigkap en moderne inbouwapparatuur. Aan de achterzijde bevindt zich een gezellige zithoek met een grote raampartij en toegang tot de tuin.
De tuin is een waar verlengstuk van de woonkamer dankzij de royale serre annex tuinkamer, die volledig kan worden afgesloten met schuifdeuren. Verder is de tuin speels ingedeeld met meerdere terrassen, een jacuzzi en een groene pergola die leidt naar het lagergelegen deel van de tuin, direct aan het water. Hier geniet je volop privacy, midden in de woonwijk.
In de woonkamer bevindt zich tevens een tweede hal met trapopgang en een toiletruimte, uitgevoerd in dezelfde stijl als de badkamer.
Eerste verdieping
Overloop met drie slaapkamers van ca. 7,0 m², 12,3 m² en 12,3 m². De masterbedroom is een echte eyecatcher, voorzien van een stijlvol ligbad. De badkamer is eind 2024 vernieuwd en luxe afgewerkt met beige natuursteen en zwarte details. Hier vind je een inloopdouche, wastafelmeubel en toilet.
Tweede verdieping
Via een vaste trap bereik je de voorzolder met praktische op maat gemaakte kasten, een witgoedopstelling, wastafel en knieschotten voor extra bergruimte. Hier bevindt zich tevens de royale vierde slaapkamer van 16,4 m² met een kastenwand op maat. De cv-ketel is ook op deze verdieping geplaatst.
BIJZONDERHEDEN:
- Instapklare woning met oprit;
- 4 slaapkamers;
- Tuin aan het water met jacuzzi en serre annex tuinkamer;
- Keuken gerenoveerd in 2021;
- Badkamer en toilet beneden vernieuwd eind 2024;
- Mechanische ventilatie vernieuwd in 2024;
- Meter-/ groepenkast vervangen in 2020;
- Vloerverwarming begane grond;
- 10 zonnepanelen;
- Gelegen in kindvriendelijke wijk met alle voorzieningen nabij;
- Schuur is voorzien van dubbele deur voor eventuele motor of scooter. Lees de volledige omschrijving
Overdracht
- Vraagprijs
- € 485.000 k.k.
- Status
- Verkocht
Bouw
- Object type
- Eengezinswoning, tussenwoning
- Soort bouw
- Bestaande bouw
- Bouwjaar
- 1982
- Soort dak
- Zadeldak bedekt met pannen
Oppervlakte en inhoud
- Woonoppervlakte
- 115 m²
- Perceeloppervlakte
- 143 m²
- Inhoud
- 427 m³
- Gebouwgeb. buitenruimte
- 16 m²
Indeling
- Aantal kamers
- 5 kamers (4 slaapkamers)
- Aantal badkamers
- 1 badkamer
- Badkamervoorzieningen
- Douche, toilet, en wastafelmeubel
- Aantal woonlagen
- 3 woonlagen
- Voorzieningen
- Dakraam, mechanische ventilatie, rolluiken, en zonnepanelen
Energie
- Energielabel
- C
- Isolatie
- Dakisolatie, hr-glas, muurisolatie, vloerisolatie en volledig geïsoleerd
- Verwarming
- Cv-ketel
- Warm water
- Cv-ketel
- Cv ketel
- Atag i36ec zone (gas gestookt combiketel uit 2019, eigendom)
Buitenruimte
- Ligging
- Aan water, beschutte ligging en in woonwijk
- Tuin
- Achtertuin en voortuin
- Afmetingen achtertuin
- 64 m² (11,76 meter diep en 5,43 meter breed)
- ligging tuin
- Gelegen op het zuidwesten
Bergruimte
- Schuur / berging
- Aangebouwde stenen berging
- Voorzieningen
- Elektra
Parkeergelegenheid
- Soort parkeergelegenheid
- Op eigen terrein en openbaar parkeren
Energieverbruik in Wijk bij Duurstede
Energielabel deze woning
Energielabel C
Publicatie energielabel:
Stroomverbruik per jaar
(Gemiddelde tussenwoning in Wijk bij Duurstede)
Gasverbruik per jaar
(Gemiddelde tussenwoning in Wijk bij Duurstede)
* Cijfers zijn afkomstig van het CBS en bedoeld als indicatie en kunnen verschillen voor deze woning
Indicatie hypotheeklasten
Eigen inleg:
Spaargeld / overwaarde
Rente:
Laagste 10-jaars rente
Laagste 10-jaars rente
2,75% - Centraal Beheer Groen... - NHG
3,04% - Argenta Groen Hypothee... - 80%
Laagste 20-jaars rente
3,18% - Argenta Groen Hypothee... - NHG
3,39% - Argenta Groen Hypothee... - 80%
Laagste 30-jaars rente
3,35% - Argenta Groen Hypothee... - NHG
3,56% - Argenta Groen Hypothee... - 80%
Hypotheek:
Bruto maandlasten: € 0 p/m
Netto maandlasten: € 0 p/m
Hoe berekenen we dit?
Het rentepercentage is gebaseerd op de laagste 10 jaars vaste rente voor één hypotheekdeel. De vermelde rente (3.04% zonder NHG) is gecontroleerd op 30-10-2025. Deze berekening is gebaseerd op een annuïteitenhypotheek die volledig wordt afgelost, waarbij de maandlasten gedurende de gehele looptijd gelijk blijven. De werkelijke rente en netto maandlasten kunnen variëren, afhankelijk van uw persoonlijke situatie en de hypotheekverstrekker. Raadpleeg een financieel adviseur voor een nauwkeurige berekening en advies. Aan deze berekening kunnen geen rechten worden ontleend; het dient enkel als indicatie.
Documentatie
Kadastrale kaart
Leefomgeving
Brochure-vechtsteen-35-wijk-bij-duurstede
Lijst-van-zaken-1
Vragenlijst-deel-b
BAG uittreksel
Brochure
Plattegronden PDF
Energielabel-voorlopig-2015-1
Bezichtiging
Bod uitbrengen
Waardebepaling
Zoekopdracht
Alles downloaden
Zonnegrenzen bekijken
Op de kaart
Inwoners in Wijk bij Duurstede
Cijfers voor postcodegebied 3961
- Totaal aantal inwoners
- 9410 inwoners
- Mannen
- 48%
- Vrouwen
- 52%
Inwoners in Wijk bij Duurstede
Cijfers voor postcodegebied 3961
- tot 15 jaar
- 15%
- 15 tot 25 jaar
- 11%
- 25 tot 35 jaar
- 22%
- 45 tot 65 jaar
- 32%
- 65 en ouder
- 20%
Huishoudens in Wijk bij Duurstede
Cijfers voor postcodegebied 3961
- Eenpersoons zonder kinderen
- 32%
- Meerpersoons zonder kinderen
- 33%
- Huishoudens zonder kinderen
- 65%
Huishoudens in Wijk bij Duurstede
Cijfers voor postcodegebied 3961
- Huishoudens met één kind
- 7%
- Huishoudens met meerdere kinderen
- 28%
- Huishoudens met kinderen
- 35%
Woningen in Wijk bij Duurstede
Cijfers voor postcodegebied 3961
- Woningen voor 1945
- 10%
- Woningen tussen 1945 en 1965
- 2%
- Woningen tussen 1965 en 1975
- 11%
- Woningen tussen 1975 en 1985
- 34%
- Woningen tussen 1985 en 1995
- 33%
Woningen in Wijk bij Duurstede
Cijfers voor postcodegebied 3961
- Woningen tussen 1995 en 2005
- 5%
- Woningen tussen 2005 en 2015
- 3%
- Woningen na 2015
- 3%
- Huurwoningen
- 40%
- Koopwoningen
- 60%
Overige in Wijk bij Duurstede
Cijfers voor postcodegebied 3961
- Gemiddelde WOZ waarde
- € 268.000,-
- Personen onder de 65 met uitkering
- 7%
Overige in Wijk bij Duurstede
Cijfers voor postcodegebied 3961
- Adressen per km²
- 1335
- Stedelijkheid (schaal 1 op 5)
- 60%
Korte feiten over Wijk bij Duurstede
Wijk bij Duurstede is een vestingstad en gemeente in het zuiden van de Nederlandse provincie Utrecht. De gemeente telt 23.953 inwoners (1 januari 2024, bron: CBS) op een oppervlakte van 50,3 km² waarvan 2,68 km² water. Door en langs Wijk bij Duurstede stromen de waterwegen Nederrijn, Lek, Kromme Rijn en het Amsterdam-Rijnkanaal.
ENTREE makelaars
Indien u vragen heeft of u wilt een bezichtiging inplannen, dan kunt u gebruik maken van het formulier hiernaast. Er zal daarna op korte termijn contact met u worden opgenomen.
Contact opnemen
ENTREE makelaars Kromme Rijnstreek
Ons kantoor is gevestigd aan de Zandweg, vlakbij de toegangspoort tot het historische centrum van Wijk bij Duurstede. Als makelaars met een sterke lokale betrokkenheid kennen wij de regio door en door.
Bij ENTREE makelaars staat een enthousiast en deskundig team klaar om u te begeleiden bij alle vastgoedvraagstukken. Onze makelaars hebben uitgebreide kennis van de woningmarkt, regelgeving en bouwkundige aspecten die van invloed zijn op de waarde van uw woning. Als lid van de NVM en NRVT garanderen wij een professionele aanpak, waarbij alle bezichtigingen worden uitgevoerd door gecertificeerde makelaars.
Naast het kopen en verkopen van woningen bieden wij ook waardevolle adviezen over hypotheekadvies, verzekeringen en bouw- of verbouwingsspecialisten. Dankzij ons zorgvuldig opgebouwde netwerk kunt u rekenen op betrouwbare partners uit de regio.
Nieuwste reviews
-
Dr Brevéestraat 67
Voor de 2e keer Entree in de arm genomen voor de verkoop en weer een goede ervaring. No nonsense, snappen wat ze doen en komen de afspraken...
-
Zocherstraat 27
Makelaar heeft ons buitengewoon goed geholpen en gedaan wat van te voren was afgesproken. Een duidelijke en realistische inschatting gemaakt...
-
Kruisbessengaard 102
Als aankoopmakelaar was Rens duidelijk, bedachtzaam, ging goed in overleg met ons en gaf ons zeer goed advies. Na eerst te twijfelen of we e...